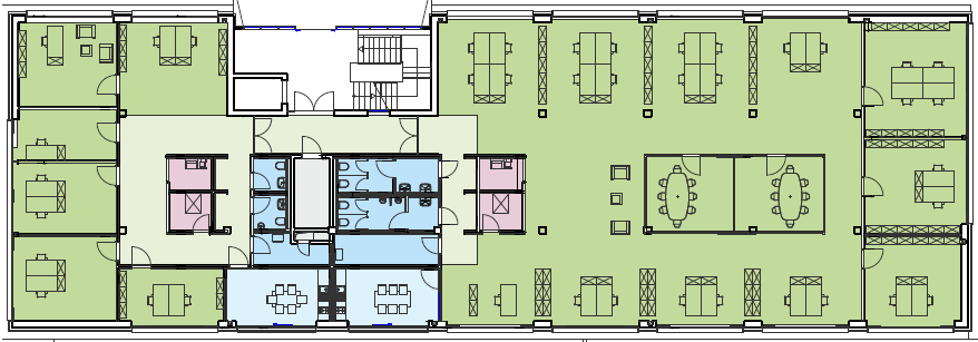
Beispielgrundriss EG: Teilbar in 2 Büroeinheiten, ca. 40qm Aussenfläche ideal für kleine Terrasse mit Bestuhlung geeignet